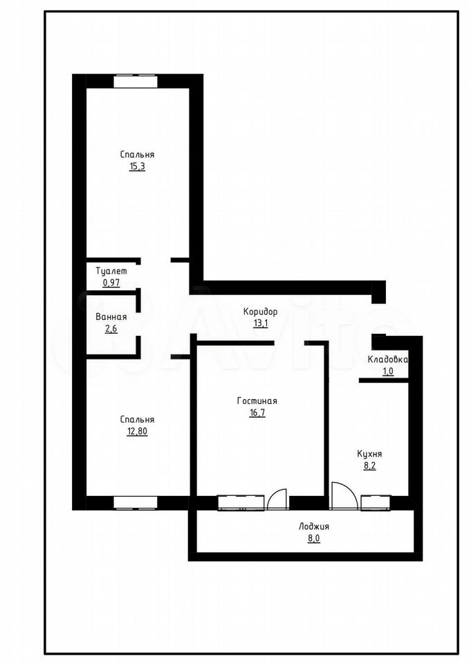
3-к. квартира, 73,2 м², 10/10 эт.

Ставропольский край, Ставрополь г, Пирогова ул, 40/2
5 050 000
Количество комнат
3
Этаж
10
Этажность
10
Общая площадь
73.2 м2
Регион
Ставропольский край
Населенный пункт
Ставрополь г
Дом
40/2
Улица
Пирогова ул
Продается квартира подготовленная к ремонту. Установлены пластиковые окна, лоджия застеклена и утеплена. Проводка, трубы, отопление — новые. Установлена качественная входная дверь. Установлен мощный кондиционер. Квартира очень теплая, светлая и тихая, соседей не слышно вообще. Есть технический этаж, на котором расположена личная кладовая комната 12 м2. Так же во дворе парковочное место с замком. Между этажами сушилка, которая закрывается на замок. Просторный тамбур на 2 квартиры. В подъезде свежий ремонт, установлен новый лифт. Квартира в ипотеке, остаток долга небольшой, перед оформлением сделки, ипотека будет закрыта.

Ипотечный калькулятор

Наша компания является ипотечным брокером - официальным представителем ДОМ.РФ (реализует государственные инициативы, направленные на повышение качества и доступности жилья для граждан, ранее АИЖК), партнером Сбербанка, ВТБ и других банков.

Рассчитайте ипотеку на калькуляторе ниже. Вы можете отправить нам документы любым способом, через месенджеры, электронную почту или заполнить заявку на сайте. Мы знаем как снизить ставку!

Ипотечный калькулятор

Ежемесячный платеж:
руб.
Переплата за весь срок:
руб.
Экономия:
руб.
Loading...